4680 Rockaway Drive
Dallas, TX
INVESTMENT SUMMARY
The projects are situated in a highly sought after submarket of north east Dallas. Lakewood is directly east of the West Village and Highland Park neighborhoods in Dallas. Lakewood Elementary, J. Long Middle School, and Woodrow Wilson High School all receive the top rating and meet standards from the Texas Education Agency making the area highly desirable.
purchase rationale
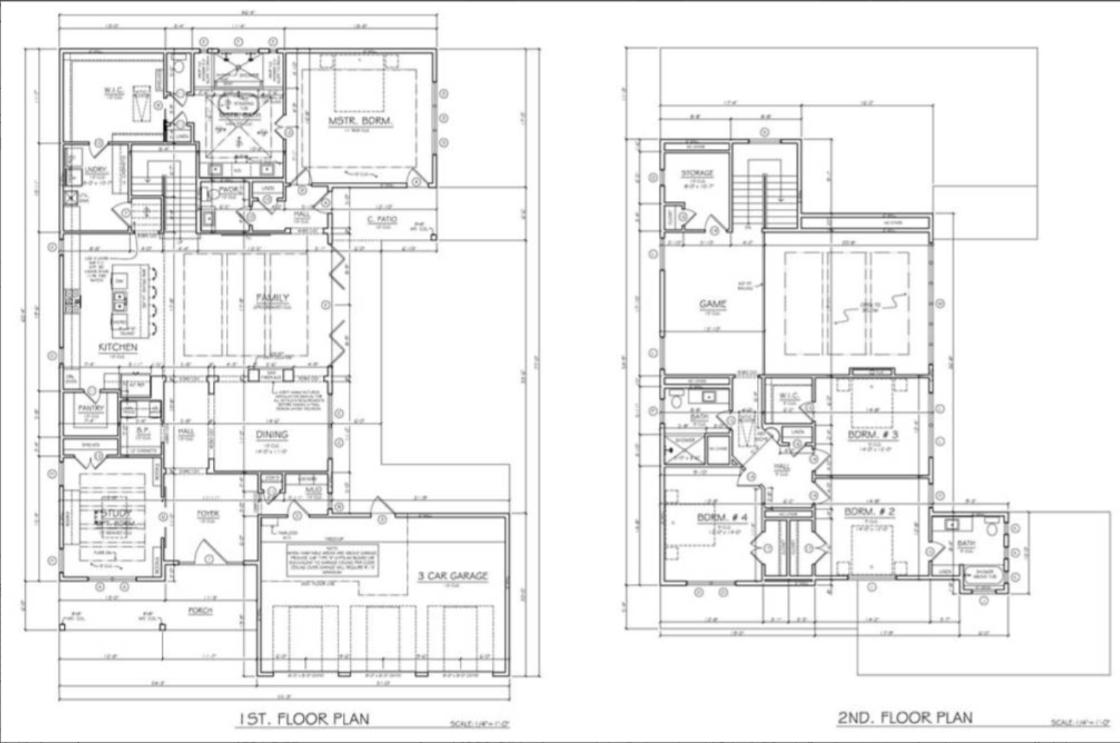
Our high-end luxury Rockaway single family projects are ground up new construction located in the heart of Lakewood (Lakewood Elementary) in Dallas, TX. Each of the homes will be separate and distinct yet maintain a cohesive aesthetic that centers upon a modern transitional appeal, clean lines, and thoughtful design. The properties will feature top of the line finishes with spacious open floor plans centered around entertaining.
exit strategy
For sale product.
note
All three buildable lots were originally purchased together for the price of two lots. 4670 Rockaway was initially designed to feature a creek view with an open flow into the dining area, kitchen, living room and outside living area. Rather than become the flagship home of the three properties, however, 4670 Rockaway was instead sold to adjacent neighbors to maintain greenspace and neighboring views. Although Welker Properties would have realized more profit building 4670 Rockaway, we felt a stronger need to maintain goodwill and smart development that conformed to neighboring aesthetics and appeals.

