5438 Willis Avenue
Dallas, TX
INVESTMENT SUMMARY
As noted for 5247 Willis Avenue, this project is also situated in Vickery Place. Adding to the allure of the previous area description, locals are also only a short walk away from the restaurants, bars, and shops along Greenville and Henderson Avenues. Additionally, the median owner-occupied home value in Vickery Place was $368,998 with a population of 6,212.
purchase rationale
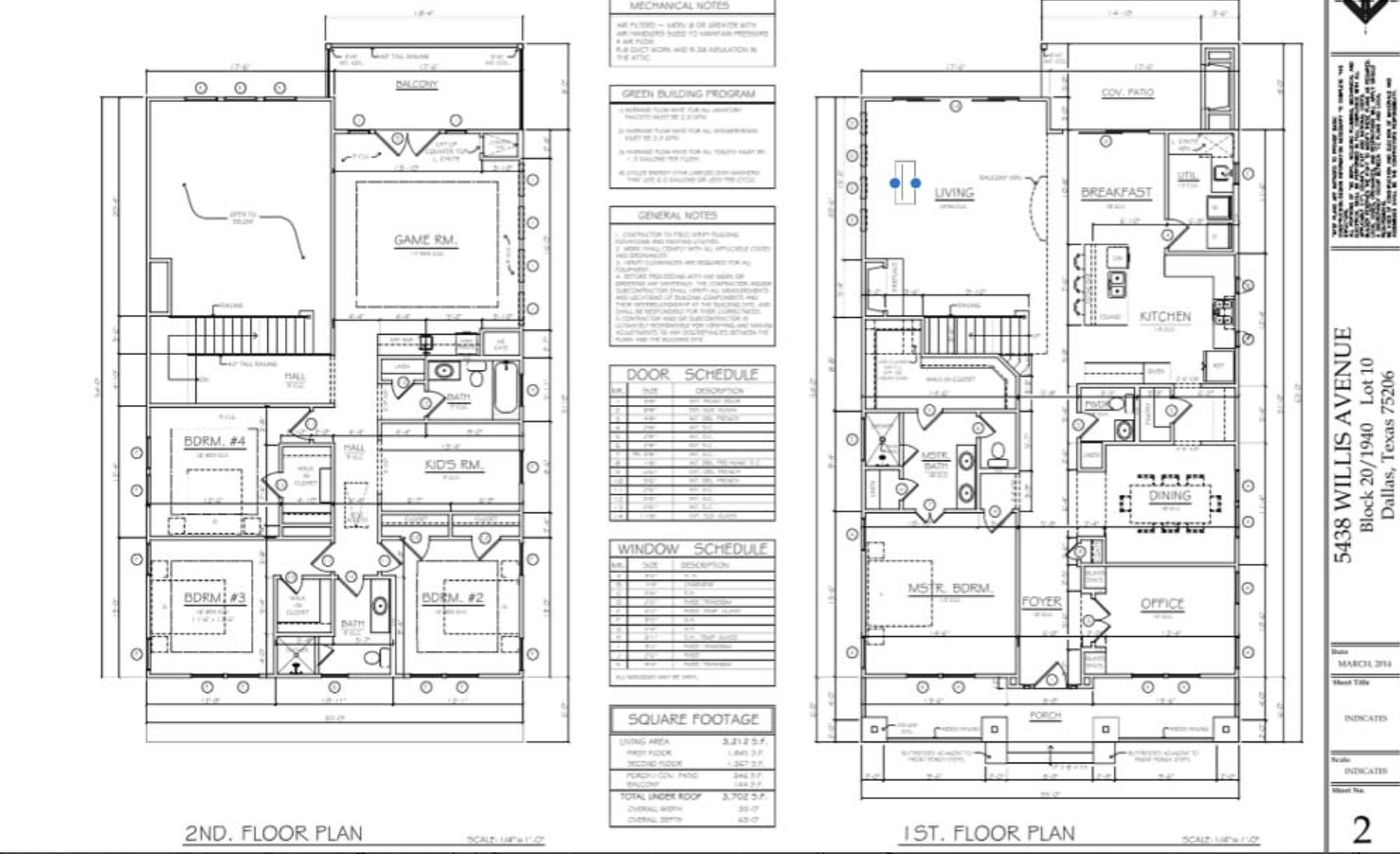
5438 Willis Ave is a 3212 sf 4B 4B 2 Car Garage Single Family ground up impressive new construction in the heart of the M Streets area. This project also showcases an open floor plan with a great room that opens to a gourmet kitchen with a highend appliance package, gorgeous hardwoods, high ceilings, high-end finishes and energy efficient throughout.
exit strategy
Project completed and sold.

